Бровари Продаж 1к квартири, вул. С.Петлюри, єОселя, мр-н Масив
ID: 29768
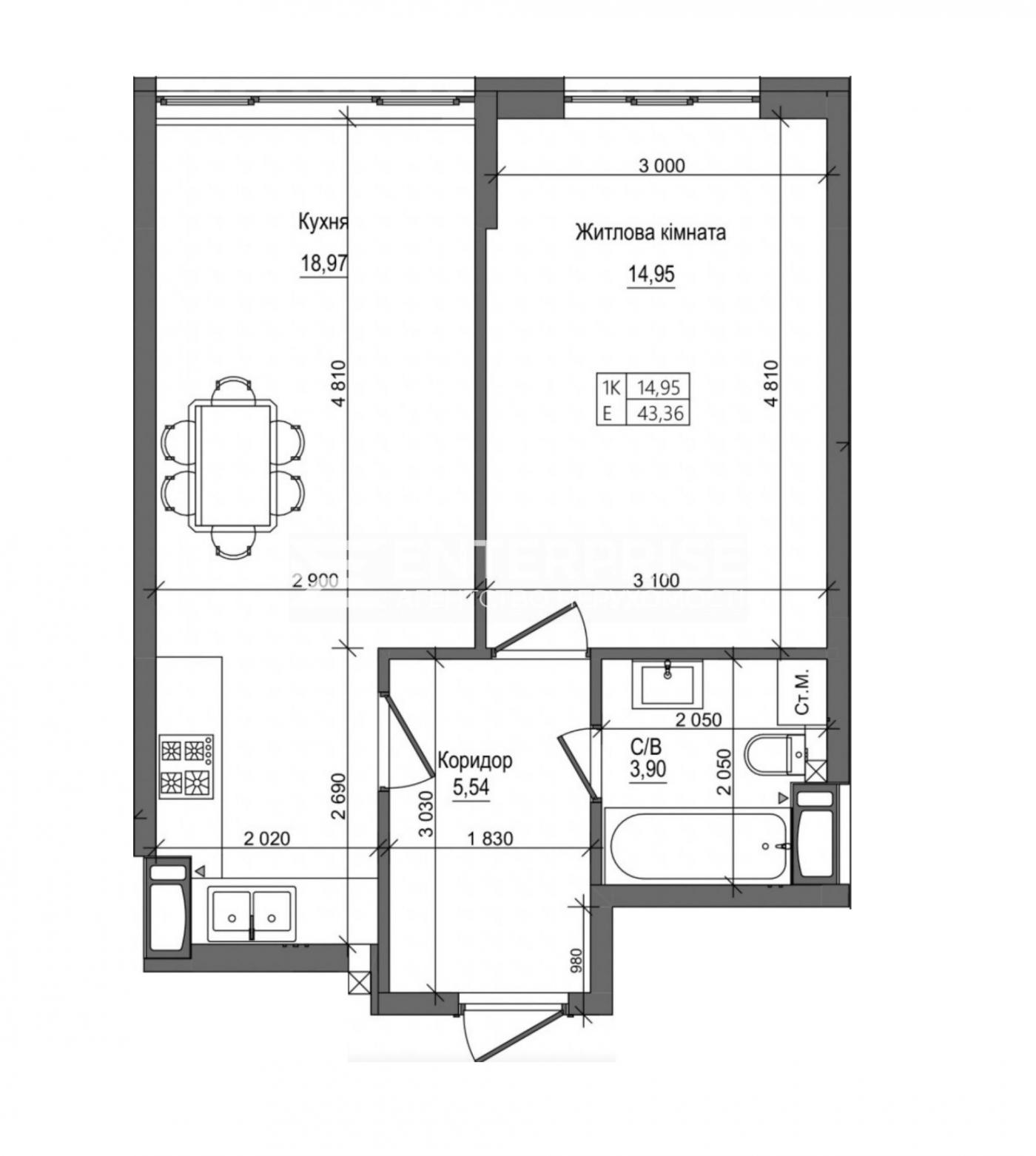
Характеристика об'єкта
- Вулиця: Петлюри
- Поверх: 6-й
- Кіл. поверхів: 25
- Загальна площа: 44 м2
- Житлова площа: 14.95 м2
- Площа кухні: 18.97 м2
Продаж 1-кімнатної квартири | вул. Симона Петлюри, 28 (3 будинок). Підходить під програму єОселя та інші державні програми фінансування!
Пропонується до продажу простора 1-кімнатна квартира у сучасному будинку 2026 року забудови.
Локація: вул. Симона Петлюри, 28 (3 будинок)
Метро: 20 хв до Лісова
Загальна площа: 43 м²
Будинок: монолітно-каркасний
Планування: вільне (можливість реалізувати власний дизайн-проєкт)
Санвузол: суміжний
Стан квартири:
після будівельників (без штукатурки)
проведена електропроводка, встановлено лічильник електроенергії «день/ніч», централізоване опалення.
Квартира сонячна та тепла.
Зручна транспортна розв’язка та розвинена інфраструктура району.
Ціна: 42000 у.о; Код об'єкта: #29768
